REQUEST A TOUR If you would like to see this home without being there in person, select the "Virtual Tour" option and your agent will contact you to discuss available opportunities.
In-PersonVirtual Tour

Listed by DARREN JENKINS • GREAT DAY REALTY
$599,900
Est. payment /mo
2 Beds
2 Baths
1,222 SqFt
UPDATED:
Key Details
Property Type Single Family Home
Sub Type Detached
Listing Status Active
Purchase Type For Sale
Square Footage 1,222 sqft
Price per Sqft $490
MLS Listing ID CRIG25196997
Bedrooms 2
Full Baths 2
HOA Y/N No
Year Built 2025
Lot Size 6,970 Sqft
Property Sub-Type Detached
Source Datashare California Regional
Property Description
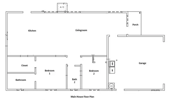
Your opportunity to own a BRAND new home plus an Accessory Dwelling unit (ADU)! The home is a 2 bedroom, 2 bath 1,222 sq ft home with a 2 car garage. Walk in closet in the main bedroom. The ADU is a 2 bedroom, 1 bath 922 sq ft ADU. Both are smartly designed for comfortable living! The kitchen and baths will come with White Shaker style cabinets and white quartz counter tops. The exterior walls are made with 2x6 lumber and filled with insulation. The windows are dual pane windows. New technology to keep your home cool in the summer and warm in the winter. The solar production system is fully paid for and will be owned by you with no payments to anyone for the power it produces. The home and ADU will have both carpet and vinyl flooring. They are currently under construction at this time so we are not ready for showings yet. Please drive by and take a look from the street for now. We will update the listing when it is available for showings.
Location
State CA
County Riverside
Interior
Heating Central
Cooling Central Air
Flooring Vinyl, Carpet
Fireplaces Type None
Fireplace No
Window Features Double Pane Windows
Appliance Electric Range, Electric Water Heater, Tankless Water Heater
Laundry In Garage, Electric
Exterior
Garage Spaces 2.0
Pool None
View None
Private Pool false
Building
Lot Description Level, Other
Story 1
Foundation Slab
Water Public
Schools
School District Banning Unified
Read Less Info

© 2025 BEAR, CCAR, bridgeMLS. This information is deemed reliable but not verified or guaranteed. This information is being provided by the Bay East MLS or Contra Costa MLS or bridgeMLS. The listings presented here may or may not be listed by the Broker/Agent operating this website.
GET MORE INFORMATION
